200 E 66TH Street A505
200 E 66TH Street A505
SEE ALL PHOTOS
200 E 66TH Street A505
200 E 66TH Street A505
Sold

200 E 66TH Street A505

200 E 66TH Street A505, New York City, NY 10065

$1,375,000

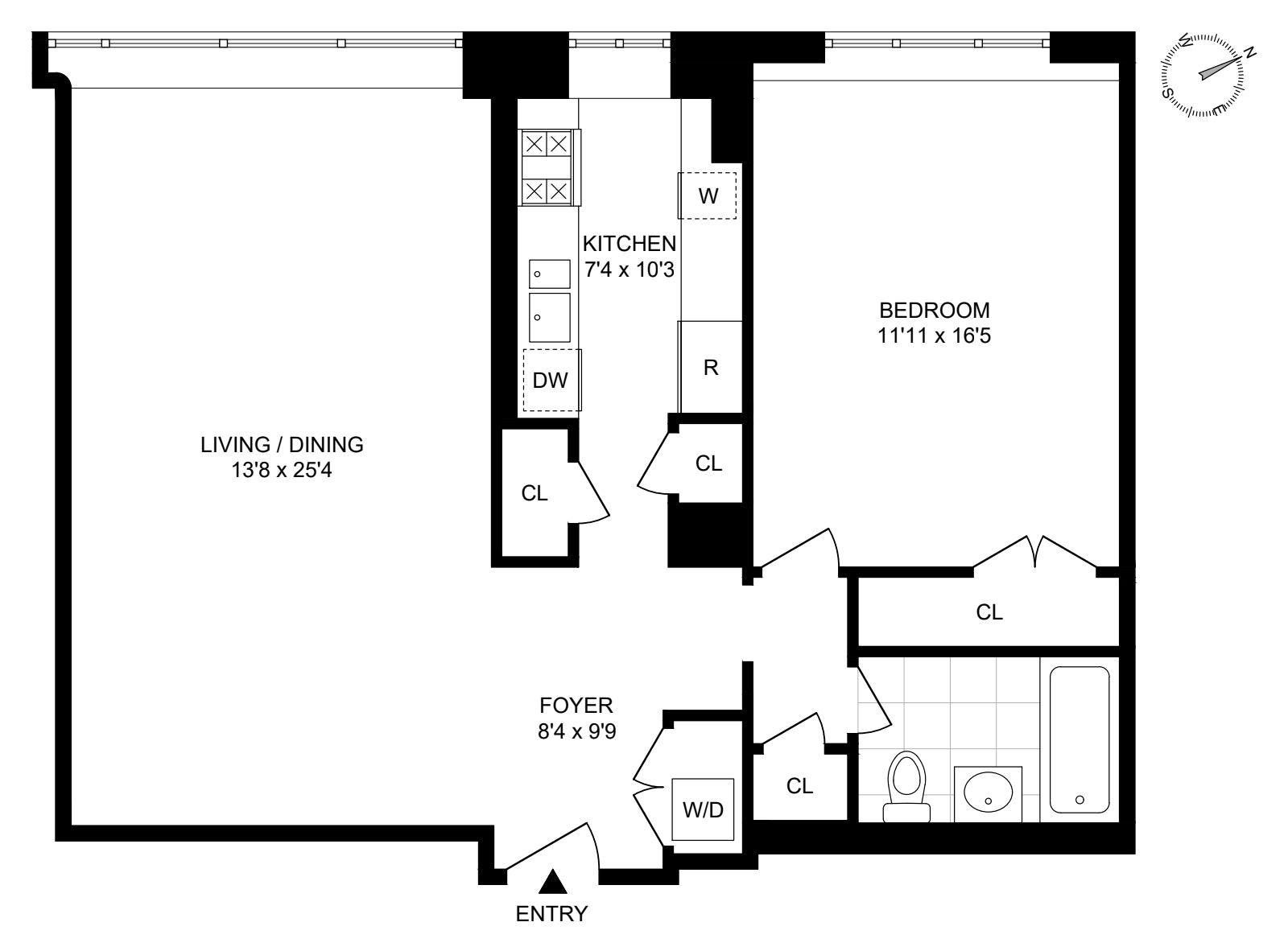
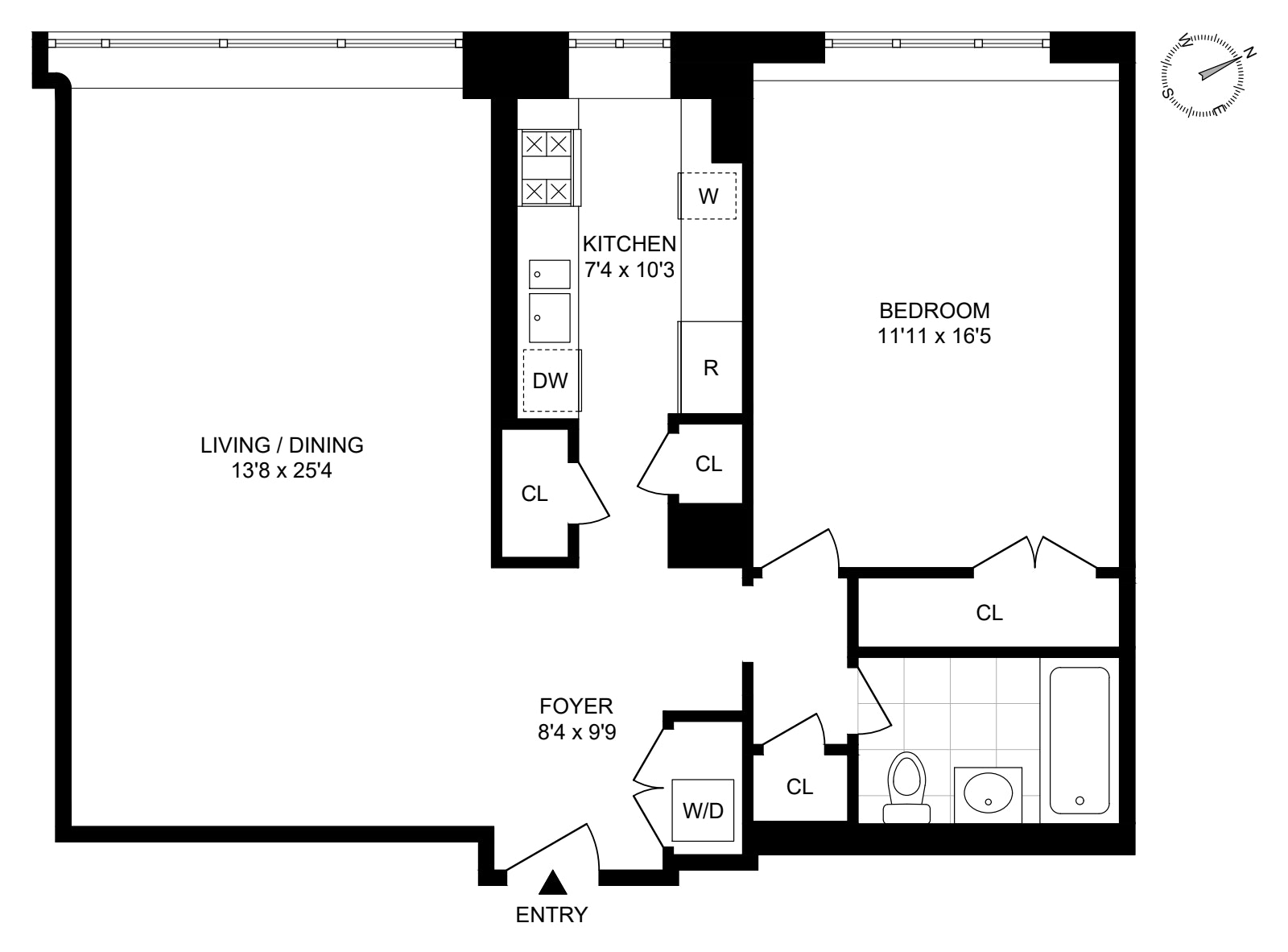
This 919 square foot one bedroom home in the A tower is move-in ready! The wide and bright living room, with custom blinds, can easily accommodate a large dining table, including a spacious sitting area. The windowed chefs kitchen features a viking appliance package including: wine cooler, refrigerator & freezer and dishwasher. The west-facing bedroom has space for a king sized bed and has a large closet. The bathroom has a heated floor and there is ample storage closets. There is a front-loading washer/dryer in a separate laundry closet in the foyer.

The Manhattan House is centrally located in the heart of the Upper East Side between 2nd and 3rd avenues. Designed in 1950 by master architect Gordon Bunshaft with Skidmore Owings and Merrill, the building was declared a New York City Landmark in 2007. Amenities include 24 hour doorman, full-time residence manager, on-site valet, garage, rooftop club offering 10,000 sqft of interior and exterior entertainment space, fitness club, playroom designed by Roto Architects, bicycle storage and five star hotel concierge services. Former home of Grace Kelly and other notable names, truly one of Manhattan's iconic residential buildings.

1
bed

1
full bath

919 Sq.Ft. LIVING AREA

Features & Amenities

Interior

  • total bedrooms1
  • Total bathroom1
  • full bathroom1
  • Laundry room Building In Basement, Washer Hookup, In Unit
  • APPLIANCES Washer Dryer Allowed
  • other interior Features Smoke Free

Area & Lot

  • Status Sold
  • Living Area919 Sq.Ft.
  • MLS® IDRLS10975641
  • TypeCondo
  • YEAR BUILT1951
  • NeighborhoodManhattan
  • View DescriptionCity

Exterior

  • STORIES20
  • Garage Space1.0
  • parkingAssigned, Garage
  • other exterior FeaturesBuilding Roof Deck

Financial

  • Sales Price$1,375,000
  • Common Charges $1,109/mo
Karen Kostiw

Karen Kostiw

Manhattan

Explore

Let’s Make It Happen

With us representing you and your property in the purchase or sale of real estate, you will not only work with one of the city’s highly-trained and hardest working agents, but you will also have the benefit of Coldwell Banker Warburg’s leadership strategies every step of the way.

Follow Me on Instagram