211 Madison Avenue 22-B
211 Madison Avenue 22-B
SEE ALL PHOTOS
211 Madison Avenue 22-B
211 Madison Avenue 22-B
Leased

211 Madison Avenue 22-B

211 Madison Avenue 22-B, New York City, NY 10016

$10,500/month
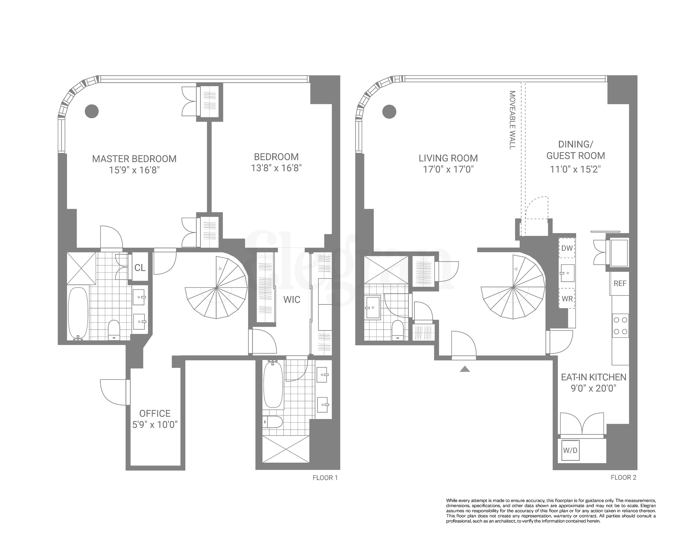
A private garden oasis welcomes you upon entering Morgan Court, 211 Madison Ave.

This convertible 3-bed, 3-bath home offers elevated living with captivating city views. Residents are delivered to the main, open plan living area from which they enter the kitchen and breakfast room with generous storage space and a stacked washer/dryer.

Light is abundant throughout the southwest-facing 30ft WIDE living area which includes a custom glass, soundproof wall. This offers residents the ability to convert the space into two separate rooms including a completely private 3rd bedroom or office with its own full bath and closet space.

A spiral staircase descends to the first level which houses the primary and second bedrooms, both including en-suites and custom closets, as well as an additional bonus space for storage or a home office. All radiators throughout the home are encased with custom built in cabinetry.

The Morgan Court Condominium, located in Murray Hill, is a sliver building constructed in 1984 on the former grounds of the JP Morgan Carriage House. Beyond the chic attended lobby, with its full-time doorman, lies the newly landscaped atrium with tranquil reflecting ponds and private garden. The pet-friendly Morgan Court offers privacy and personalized service to the fewer than 40 units within its building and has the added benefit of a live-in super.

2
beds

3
full baths

2,010 Sq.Ft. LIVING AREA

Features & Amenities

Interior

  • total bedrooms2
  • Total bathrooms3
  • full bathrooms3
  • Laundry room Building Washer Dryer Install Allowed, Common Area, In Unit
  • APPLIANCES Dryer, Washer
  • other interior Features Kitchen Window

Area & Lot

  • Status Leased
  • Living Area2,010 Sq.Ft.
  • MLS® IDRLS11011035
  • TypeCondo
  • YEAR BUILT1985
  • View DescriptionCity

Exterior

  • STORIES32
  • AIR CONDITIONINGCentral Air
  • other exterior FeaturesBuilding Storage, Building Garden

Financial

  • Lease Price$10,500/mo
Ashley Reidy Quinn

Ashley Reidy Quinn

Nick Montalbano

Nick Montalbano

Mortgage Calculator

Estimate your monthly mortgage payment, including the principal and interest, property taxes, and HOA. Adjust the values to generate a more accurate rate.

All estimates are provided for informational purposes only. Actual amounts may vary.
$0,000 Your Payment 20 15 65
$0,000 Your Payment

Let’s Make It Happen

With us representing you and your property in the purchase or sale of real estate, you will not only work with one of the city’s highly-trained and hardest working agents, but you will also have the benefit of Coldwell Banker Warburg’s leadership strategies every step of the way.

Follow Me on Instagram