246 Carlton Ave #2
246 Carlton Ave #2
SEE ALL PHOTOS
246 Carlton Ave #2
246 Carlton Ave #2
Sold

246 Carlton Ave #2

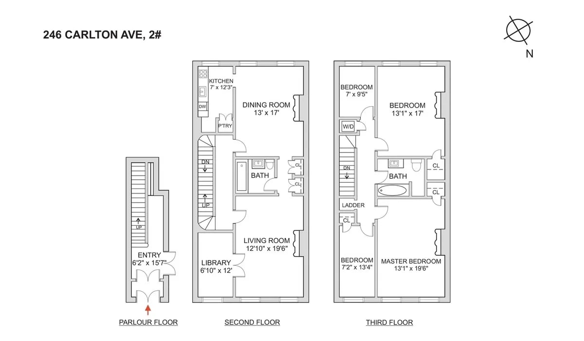
246 Carlton Avenue #2, Brooklyn 11205

$2,000 | $8,000/month
UNFURNISHED or FURNISHED IN FORT GREENE, BROOKLYN
Situated on a gorgeous. tree-lined block in Fort Greene, this beautifully renovated upper duplex is available to rent, starting January 1, 2025. 
Only 1 flight up, this two-floor apartment has 3 bedrooms and a large, windowed double-sized home office that can be a 4th bedroom. There are two renovated bathrooms, a large living room, a formal dining room, and a custom windowed kitchen that's been recently updated with stainless steel Viking and Bosch appliances. Beautiful views and light from each room, artfully decorated, outfitted with CAC as well as custom lighting and plenty of storage. Just so you know, showings by appointment only. Sorry, NO smoking. Just two blocks from Fort Greene Park!

3
beds

2
full baths

Features & Amenities

Interior

  • total bedrooms3
  • Total bathrooms2
  • full bathrooms2

Area & Lot

  • Status Sold
  • TypeMulti-Family
  • YEAR BUILT1930
  • NeighborhoodBrooklyn
  • Elementary SchoolPs 20 Clinton Hill
  • Middle SchoolMs 113 Ronald Edmonds Learning Center
  • High SchoolBrooklyn Technical

Financial

  • Sales Price$2,000
  • Lease Price$8,000/mo
Bill Kowalczuk

Bill Kowalczuk

Brooklyn

Explore

Let’s Make It Happen

With us representing you and your property in the purchase or sale of real estate, you will not only work with one of the city’s highly-trained and hardest working agents, but you will also have the benefit of Coldwell Banker Warburg’s leadership strategies every step of the way.

Follow Me on Instagram