29 4th Pl #1
29 4th Pl #1
SEE ALL PHOTOS
29 4th Pl #1
29 4th Pl #1
Sold

29 4th Pl #1

29 4th Place #1, New York, NY 11231

$11,000/month
Available fully furnished, from August 1, 2022 to November 30, 2022 (4 months).
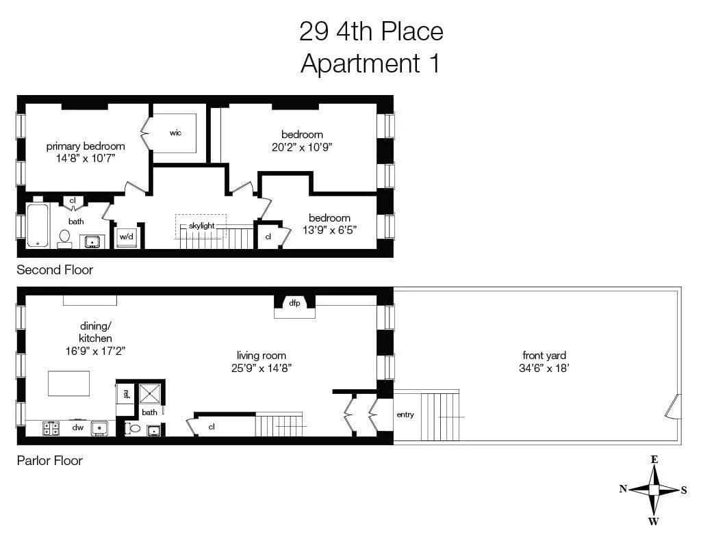
Built in 1899 and located on a lush, tree-lined block in Carroll Gardens, this gorgeous impeccably kept brownstone owner's duplex is now available for a short-term rental.
Parlor level: Large open living room, dining room, and kitchen, stylishly furnished, 12' ceilings, curated art, great light and full bathroom,
Open chef's kitchen is fully stocked with everything you will need. New Bertazzoni range (that vents outside!), Miele refrigerator and Bosch dishwasher.
2nd Floor: Three (3) bedrooms, sitting area, full bathroom, washer/dryer
The home is located on one of Carroll Gardens' prized "Place Blocks" which is a short walk to restaurants, shopping, public transit, and more. Sorry NO PETS

3
beds

3
full baths

1,750 Sq.Ft. LIVING AREA

Features & Amenities

Interior

  • total bedrooms3
  • Total bathrooms3
  • full bathrooms3

Area & Lot

  • Status Sold
  • Living Area1,750 Sq.Ft.
  • YEAR BUILT1899

Financial

  • Lease Price$11,000/mo
Bill Kowalczuk

Bill Kowalczuk

Let’s Make It Happen

With us representing you and your property in the purchase or sale of real estate, you will not only work with one of the city’s highly-trained and hardest working agents, but you will also have the benefit of Coldwell Banker Warburg’s leadership strategies every step of the way.

Follow Me on Instagram