870 5TH Avenue 11D
870 5TH Avenue 11D
SEE ALL PHOTOS
870 5TH Avenue 11D
870 5TH Avenue 11D
Sold

870 5TH Avenue 11D

870 5TH Avenue 11D, New York City, NY 10065

$2,000,000

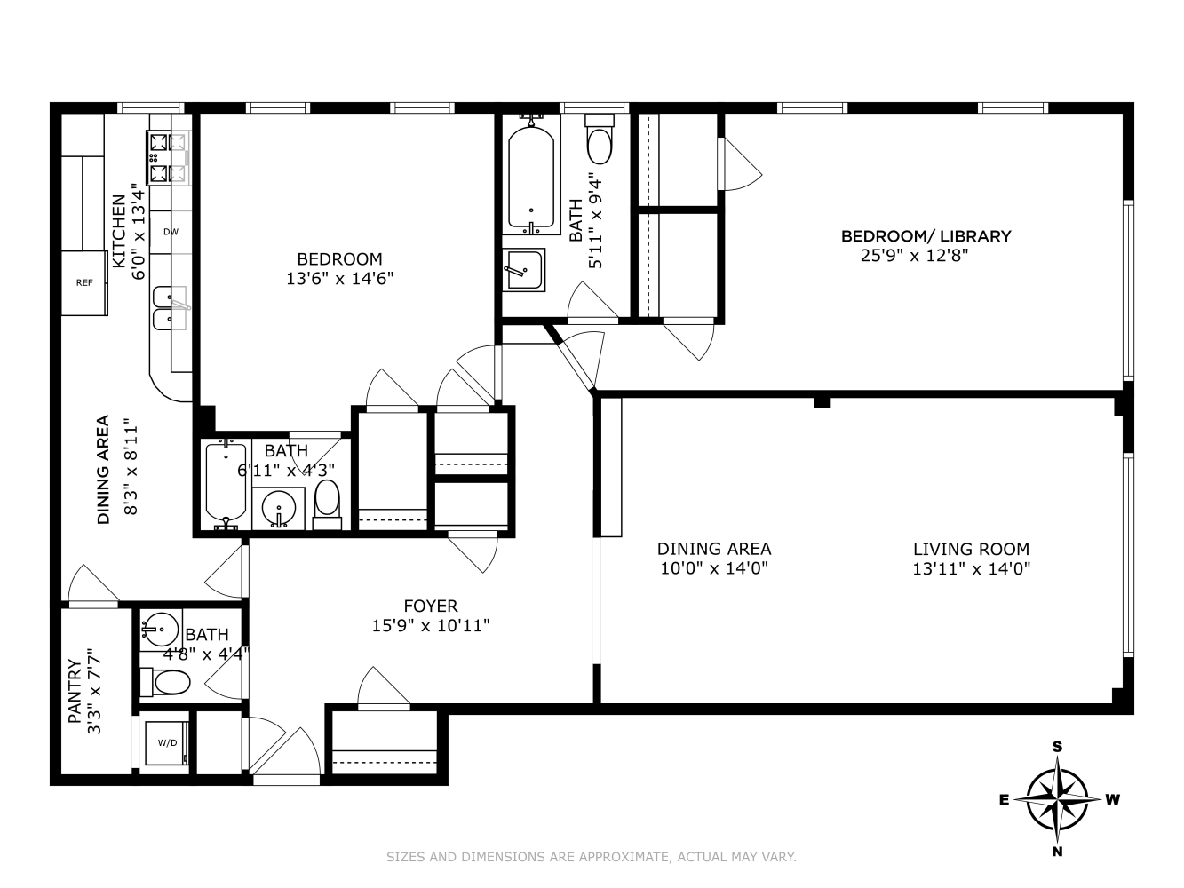
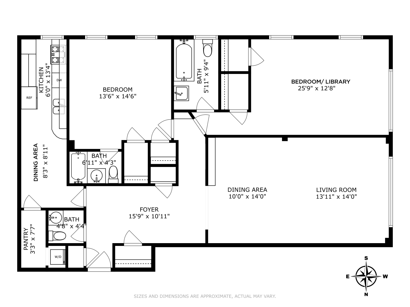
BEST VIEWS ON FIFTH AVENUE at 68th Street, a fabulous location close to museums and wonderful shopping for everything! Welcome to the elegant 870 Fifth Avenue jewel, 11D. A light filled two bedroom, two and a half bath corner apartment with direct views of Central Park and iconic buildings of midtown and the westside is now for sale. An entrance to Central Park is just across Fifth Avenue. The large inviting foyer has a powder room and three closets. As one enters, one is drawn into the living dining area because of the breath-taking views of Central Park, midtown and westside skylines through huge picture windows. From the library or en-suite bedroom, there is another huge picture window facing the park with views to the south, west. and north. Two additional windows illuminate the space. The primary bedroom has just been renovated and has new cove lighting. The entire exquisite home has been recently skim coated and painted. The two and a half bathrooms are tiled with natural stone. The sun filled windowed kitchen with dining area has produced many gourmet meals. There are white cabinets and granite counter tops in the eat-in kitchen. There also is a service entrance next to the kitchen with a Miele washer and a Miele dryer plus storage. There is a private storage cage in the basement which comes with the sale. There is also a spacious laundry room in the basement. Close to Museum Mile, the Frick Museum, the Metropolitan Museum, and the Museum of Modern Art, 870 Fifth is the perfect location.

Designed by William I. Hohauser, 870 Fifth Avenue was built in 1949 in a perfect location at 68th Street steps from Central Park on Fifth Avenue. The lobby of 870 Fifth Avenue is very inviting. There are attended elevators and a concierge. There is a new gym and a lovely roof deck. Pets are allowed in this pied-a terre friendly coop. There are 104 apartments and 20 stories. Financing may not exceed 50% of the purchase price. 3% Flip Tax. Contact me today for a showing.

2
beds

2
full baths

1
half bath

1,600 Sq.Ft. LIVING AREA

Features & Amenities

Interior

  • total bedrooms2
  • Total bathrooms3
  • full bathrooms2
  • half bathroom1
  • Laundry room Building Other, In Unit
  • APPLIANCES Washer Dryer Allowed
  • other interior Features Smoke Free

Area & Lot

  • Status Sold
  • Living Area1,600 Sq.Ft.
  • MLS® IDRLS10990522
  • TypeCo-Op
  • YEAR BUILT1949
  • NeighborhoodManhattan
  • View DescriptionPark/Greenbelt

Exterior

  • STORIES20
  • other exterior FeaturesNone

Financial

  • Sales Price$2,000,000
  • Maintenance Fee $5,167/mo
Bonnie Chajet

Bonnie Chajet

Manhattan

Explore

Let’s Make It Happen

With us representing you and your property in the purchase or sale of real estate, you will not only work with one of the city’s highly-trained and hardest working agents, but you will also have the benefit of Coldwell Banker Warburg’s leadership strategies every step of the way.

Follow Me on Instagram