9 W 20th Street 3
9 W 20th Street 3
SEE ALL PHOTOS
9 W 20th Street 3
9 W 20th Street 3
Leased

9 W 20th Street 3

9 W 20th Street 3, New York City, NY 10010

$12,000/month
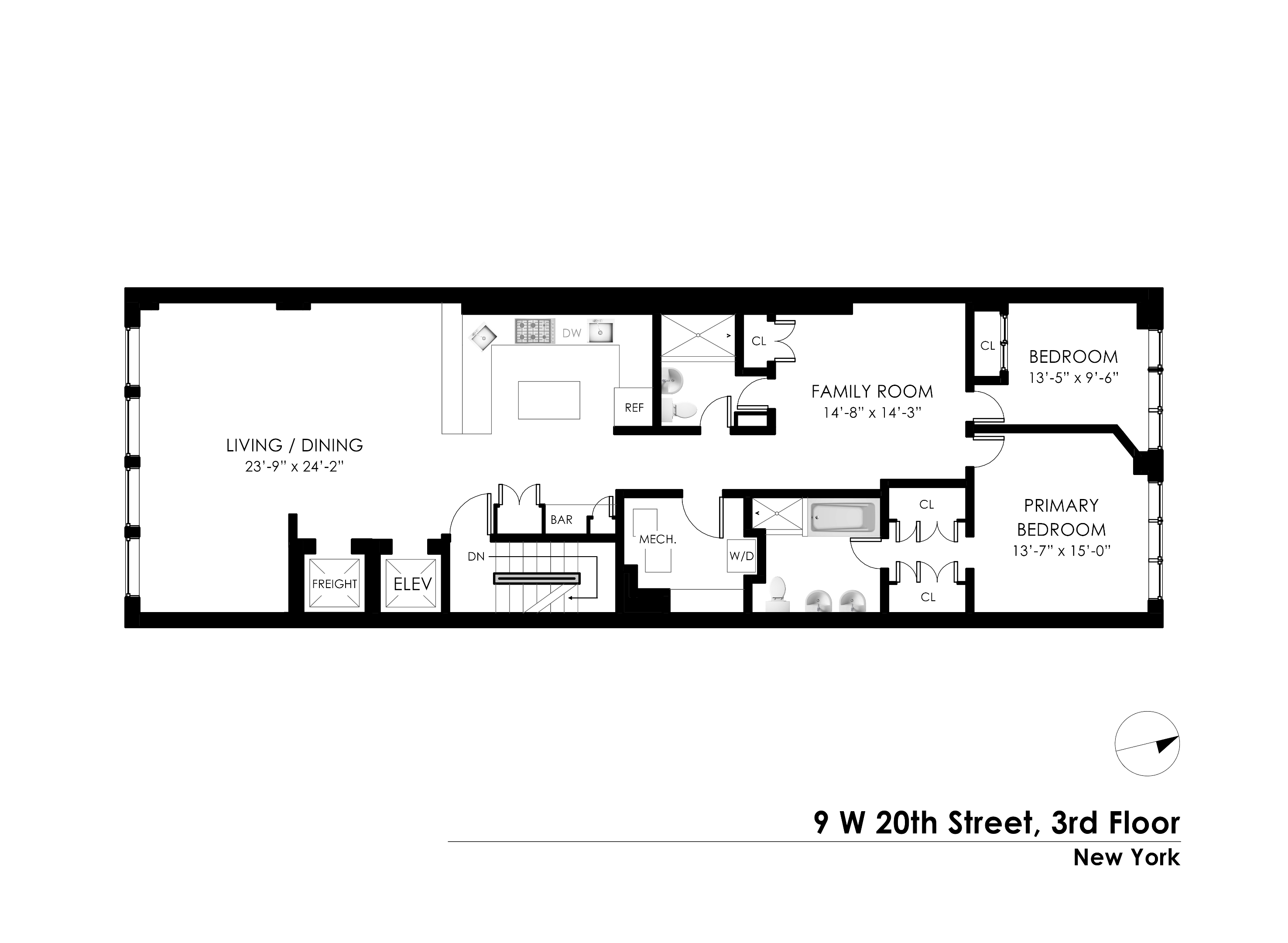
Welcome home to your classic 2000 + foot Flatiron loft just steps from Fifth Avenue as you enter from your keyed locked elevator. The Pre-war loft in this boutique condo has beautiful detail from high ceilings and over-sized windows. Currently configured as a two bedroom, two bathroom, with living room, office, & den, it is easily convertible to a three bedroom home. The kitchen is fit for a chef, with the perfect island and ample cabinet space. Lovely hardwood floors throughout and oversized windows welcome tons of light. The apartment is in terrific condition and has just undergone a full luxurious renovation.

The fully renovated kitchen has stone counters, custom cherry wood cabinets, a wolf professional oven, subzero refrigerator, bosch dishwasher, a Thermador vented range, wine cooler and two sinks. There is a formal dining area and also a kitchen island for casual dining.

The living/dining area is ideal for entertaining, with a 25' width and 50' depth. Just off of the kitchen is a massive storage space with mechanicals, and a separate washer/dryer closet.

The loft has central air-conditioning and two large luxury baths.
One of the full bath rooms is equipped with a steam shower and blue marble, the master marble bath has a jacuzzi and separate shower,

No expense has been spared in the renovation with custom lighting throughout, dressing rooms and closets galore.

2
beds

2
full baths

2,000 Sq.Ft. LIVING AREA

Features & Amenities

Interior

  • total bedrooms2
  • Total bathrooms2
  • full bathrooms2
  • Laundry room See Remarks
  • Flooring Hardwood
  • APPLIANCES Dryer, Washer
  • other interior Features Wet Bar, Built-in Features, Double Vanity, Elevator, High Ceilings, Recessed Lighting, Bar, Walk-In Closet(s)

Area & Lot

  • Status Leased
  • Living Area2,000 Sq.Ft.
  • MLS® IDRLS10985819
  • TypeCondo
  • YEAR BUILT2010
  • Architecture StylesLoft

Exterior

  • STORIES12
  • HEAT TYPECentral
  • other exterior FeaturesPrivate Entrance

Financial

  • Lease Price$12,000/mo
Stanley Ginsberg

Stanley Ginsberg

Mortgage Calculator

Estimate your monthly mortgage payment, including the principal and interest, property taxes, and HOA. Adjust the values to generate a more accurate rate.

All estimates are provided for informational purposes only. Actual amounts may vary.
$0,000 Your Payment 20 15 65
$0,000 Your Payment

Let’s Make It Happen

With us representing you and your property in the purchase or sale of real estate, you will not only work with one of the city’s highly-trained and hardest working agents, but you will also have the benefit of Coldwell Banker Warburg’s leadership strategies every step of the way.

Follow Me on Instagram